Hei, Sa oled olnud täiesti uue kodu otsinguil Otepää ümbruses? Kui jah, siis mul on Sulle pakkuda üks täiesti uus liimpalgist elamu, kuhu just Sina võiksid end sisse seada! Otepää looduses reljeefsel kinnistul. Hea juurdepääsuga. Otepäält 8 km ja Käärikult 3 km kaugusel. Läheduses Pühajärve põhikool ja lasteaed. Kergliiklustee. (talviti suusarada)
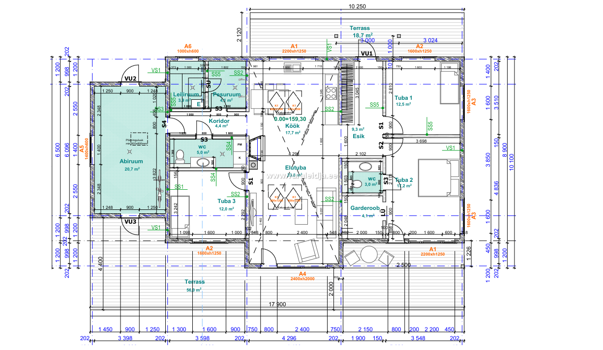
Kinnistu 4710 m2. Elamumaa 100 %. Suletud netopinnaga 140,5 m2.
Elamu on ehitatud ühe korruselisena. Majas on avar esik, vasakut kätt jäävad kohe kaks magamistuba (12,5 m2 ja 17,2 m2, ühes neist pääs rõdule ja olemas ka tualett ning garderoob). Paremat kätt jääb avatud köök koos elutoaga (41,5 m2). Kohe elutoast pääseb ka õhtupäikese poolsele terrassile. Maast laeni aknad elutoas annavad võimaluse loodusel tuppa paista! Elutoast pääseb veel kolmandasse magamistuppa (12 m2). Elutoast edasi minnes mööda vahe koridori jääb vasakut kätt tualett ja paremat kätt duširuum koos elektrikerisel saunaga. Paigaldatud kaugelt juhitav Huumi keris. Lava on tehtud termolepast ja seinad haavalauast.
Kõige viimane ruum on tehnoruum (20,7 m2), kuhu on kõik vajalikud seadmed paigaldatud. (Maakütte-, ventilatsiooni ja vee ning kanalisatsioonisüsteemid)
PS! Müügihinna sisse kuulub ka täiesti uus täispuidust köögimööbel koos integreeritud tehnikaga. (Induktsioonpliit, küpsetusahi, nõudepesumasin ja külmik. Lisaks ka kubu.). Samuti on müügihinna sees elutoas asuv suur heledas toonis diivan, teler ja magamistoas asuv voodi.
Maja on ehitatud lintvundamendile, mis on soojustatud 150 mm EPS-iga. Põrandate all on liivapadi ja 200 mm EPS. Liimpalk paksusega 202×208 mm.
Katusealune on soojustatud 60 cm puistevillaga.
Majale on paigaldatud puidust uksed ja 3x puitalumiiniumaknad. Majja põrandate alla on paigaldatud maaküttetorustik ja soojuse regulaatorid kõikidesse ruumidesse.
Katusele paigaldatud katusekivid ja lumetõke.
Lisaks maaküttele pakub sooja soojust salvestav ja hubasust loov Ahja moodulahi. Samuti on paigaldatud elutuppa ka õhksoojuspump.
Põrandaid katab kalasaba mustris paigaldatud kvaliteetne laminaatparkett.
Terrass on tehtud immutatud kuuselaudisest. Maja esine terrass on suurusega 18,7 m2 ja maja tagune vastavalt 56 m2.
KASUTUSLUBA on väljastatud 17.09.2025 korraldus nr. 2-3-443
Majas olemas Sihva tsentraalne vesi ja kanalisatsioon. Kinnistule paigaldatud ka üle pumpla, millel eraldi elektrileping 3 faasi ja 10 amprit. Seda hakkavad kasutama ka ülejäänud kahe kinnistu omanikud kui sinna uued majad ehitatakse.
*Elektrit 3 faasi ja 24 amprit. * Olemas ka signalisatsioonivalmidus.
Kinnistuni olemas tänavavalgustus.
Parkla osa on kaetud tänasel hetkel killustikuga. Kinnistu tee poolsesse ossa on istutatud mitmeid elupuid ja ka kuusehekk, mis aastate pärast veel rohkem privaatsust pakub!
Kui oled lõpuni lugenud, siis tundub, et see kinnistu võiks Sulle huvi pakkuda ja järgmise sammuna juba helista või kirjuta mulle!
Muide kõrval asuvad kinnistud on ka soovi korral müügis. Ühel neist ka jõe äärne saun peal. Soovid rohkem infot, siis anna teada!
Otepää on tuntud kui Talvepealinn. Meie piirkonnas hinnatakse paljusid ümbruskonna sportimisvõimalusi ja loomulikult vastupandamatut loodust.
Saame kokku ja räägime lähemalt! Palun anna oma vaatamise soovist mulle paar päeva ette teada!
PS! Hoonestatud kinnistu hinnale lisandub käibemaks (24%)!
Kohtumiseni!
Janek Moros
Kutseline maakler
Kutsetunnistus 163765, vanemmaakler tase 6
Kinnisvaramaakleri reg.nr: KMR 72901
Eesti Kinnisvaramaaklerite Koja liige

529 4294
info@varaleidja.ee