Hea kinnisvarahuviline! Mul on pakkuda üks omapärane talukoht, kuhu ehitatud eelmise sajandi alguses maakivist ja punastest tellistest elamu-ait-laut. Hoonet on ajaloos kasutatud isegi Jurgu kõrtsina.
Talu asub Otepää-Kanepi tee ääres Karste külas Kanepi vallas Põlvamaal. Otepäält 12,8 km ja Kanepist 7,2 km kaugusel.
Kinnistu on suurusega 8033 m2. Elamumaa.
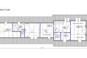
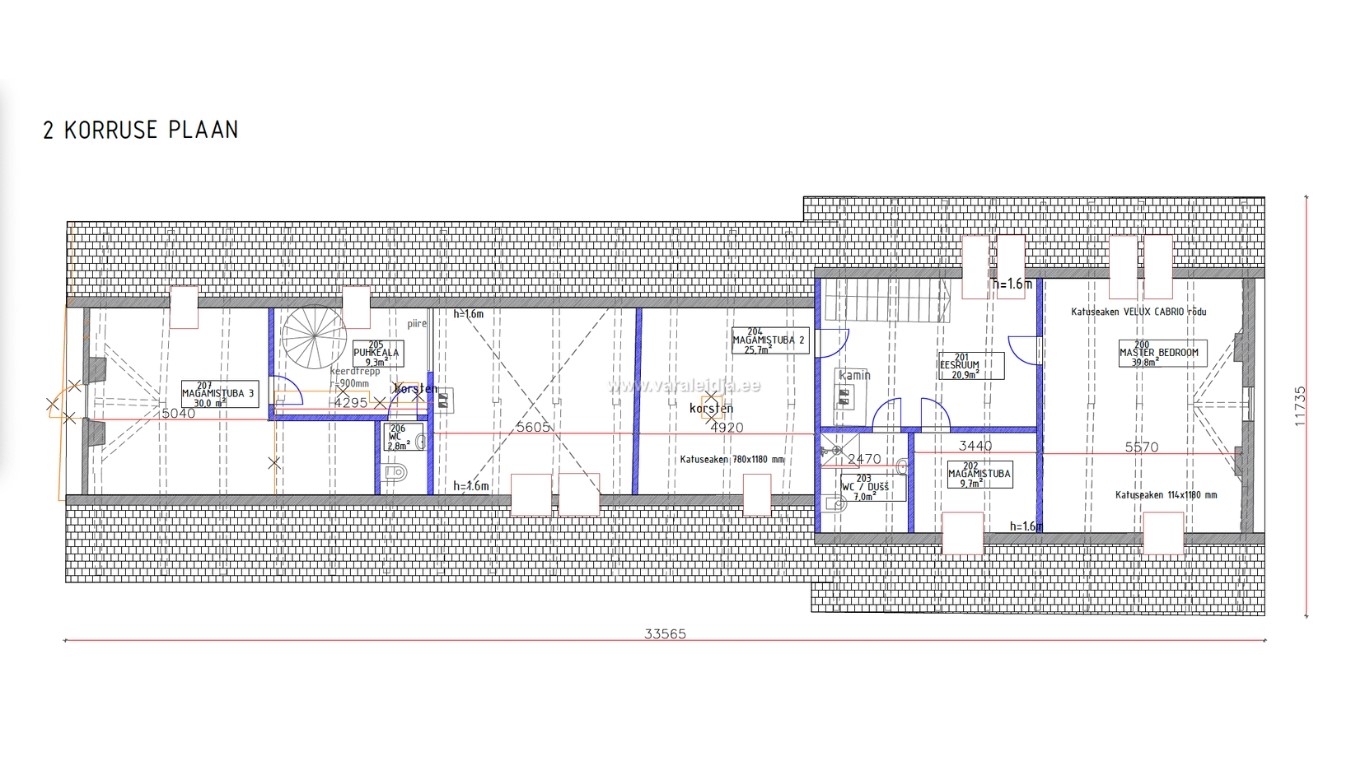
Hoone renoveerimisega on alustatud. Prügi ja ehituspraht on ära viidud. Hiljuti on maja saanud uue kivikatuse. Enamuses põrandad on soojustatud, veetud laiali küttetorustik ja kaetud betooniga. Samuti on vahetatud lae talasid. Mõned talad on veel vahetada. Lisaks on paigaldatud uued kahe kordsed plastikpakettaknad. Kinnistule on rajatud puurkaev, sügavus 80 m (pump on veel puudu) ja oma lokaalne kanalisatsioon koos imbväljakuga. Veetorustik on viidud puurkaevuni ja samuti ka kanalisatsioonitorustik septikuni. Olemas elekter 3 faasi ja 10 amprit.
Hoone on täna palju avaram kui varasemalt. Omapäraseks koduks või äritegevuseks sobilik! Ümbrus korrastatud.
Juurdepääs aastaringselt väga hea!
Kuna hoone asub teele lähedal, siis võiks seal vabalt olla mõne kunstniku galerii, sepikoda, kõrts jmt. Nii tee äärses kohas on enda tegevust ju hea reklaamida ja ka rahval hea läbi astuda.
Siseõues on privaatsust piisavalt. Seal on ka väike metsatukk.
Lisaks asub kinnistul veel korralik betoneeritud põrandaga garaaž.
PS! Võite pakkuda vahetuseks ka korterit Tartumaal, Pärnus ja Tallinnas!
Kellel vaja sellist talukohta, siis helistab või kirjutab mulle. Räägime lähemalt!
Kaugus Tartust 47 km, Põlvast 29 km, Võrust 29 km, Valgast 56 km, Tallinnast 227 km.
Janek Moros
Kutseline maakler
Kutsetunnistus 163765, vanemmaakler tase 6
Kinnisvaramaakleri reg.nr: KMR 72901
Eesti Kinnisvaramaaklerite Koja liige

529 4294
info@varaleidja.ee